Envoyez une demande

Villa de style Liberty précoce avec vue sur le lac Majeur

Luino, Lombardie, Italie

EUR 2.950.000
  1. Demeure historique
  2. Année de construction 1896
  3. 800 m² Surface utile
  4. 5 000 m² Terrain
  5. 5 Chambres
  6. 5 Salles de bain

Construite en 1896, cette villa raffinée mêle les éléments du style historiciste tardif à des inspirations Liberty, telles qu’on les retrouve en Italie du Nord à la charnière des XIXe et XXe siècles. Son décor intérieur sobre et ses grandes baies vitrées annoncent déjà l’entrée dans la modernité. Le point fort de la propriété est sans aucun doute sa vue spectaculaire sur le lac Majeur, encadrée par les Alpes. 

Sur un terrain de 5 000 m², la villa offre une surface utile totale de 800 m², comprenant des combles aménagés, une annexe offrant de nombreuses possibilités d’usage résidentiel ou professionnel, ainsi que plusieurs espaces de loisirs. 

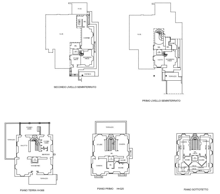
La demeure s’élève sur quatre niveaux, desservis par un ascenseur et un majestueux escalier baigné de lumière naturelle grâce à une vaste verrière. 

Le rez-de-chaussée comprend un grand salon, une salle à manger et une cuisine. Deux vastes terrasses permettent de profiter pleinement du panorama lacustre et alpin du nord de l’Italie.

À l’étage, la partie nuit accueille une chambre principale avec salle de bains privative (baignoire à hydromassage) et un dressing, ainsi qu’une seconde chambre dotée de sa propre salle de bains et d’une terrasse.

Les combles de 180 m² abritent deux suites supplémentaires, chacune avec salon, salle de bains et une vue imprenable sur le lac.

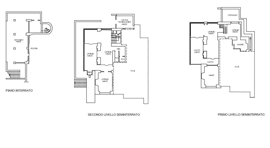
Le sous-sol comprend des salles de bains pour les invités ainsi qu’une cave de 100 m², avec plafonds hauts et pièces spacieuses, idéales pour un usage professionnel. Cet espace s’ouvre sur une grande terrasse. Une galerie, rendue possible par la double hauteur sous plafond, est divisée en trois pièces indépendantes.

Une annexe indépendante sur deux niveaux, avec terrasse et vue sur le lac, convient parfaitement à du personnel ou des invités.

La piscine, située dans la partie haute du parc, est équipée d’un pavillon, d’un vestiaire et d’une douche. Un espace fitness lumineux d’environ 60 m² est également disponible. Le garage de 160 m² peut accueillir jusqu’à quatre véhicules.

Vous venez de France, de Belgique ou d’un autre pays francophone ?
Nous vous invitons à découvrir cette demeure historique au bord du lac Majeur. Notre équipe vous accompagne de manière personnalisée lors de la visite et dans toutes les étapes administratives, juridiques et notariales liées à l’acquisition d’un bien immobilier en Italie. Nous connaissons parfaitement les attentes des acheteurs internationaux et facilitons l’ensemble du processus pour nos clients francophones. Contactez-nous pour organiser une visite ou pour en savoir plus.

Mentions légales

Agence immobilière

Stresa Luxury Real Estate

Corso Italia 52

28838 Stresa

Italie
Directeur général
Francesco Papurello
Contact
Fixe: +39 0323 32737
Site internet : https://www.stresa.biz
S'abonner à Stresa Luxury Real Estate

Recevez les nouvelles offres de propriétés de cette agence par e-mail. L'ordre de recherche peut être désactivé à tout moment.

Francesco PapurelloNous parlons English  Nous parlons Francais  Nous parlons Italiano 

Stresa Luxury Real Estate

S'Abonner
  • REALPORTICO-ID
    2504144
  • Mis à jour
    Il y a 3 mois
  • Vues
    5.03k
  • Personnes atteintes
    4.36k

Top 10 des pays pour cette propriété

Vues des 30 derniers jours

Stresa Luxury Real Estate

Autres biens à découvrir

Villa historique à Golasecca, Piémont
750 000 EUR
Villa De Fichard avec boutique-hôtel au lac Majeur à Belgirate
4 500 000 EUR
Demeure avec tour panoramique, vue sur le lac et jardin dans la ville thermale de Stresa
2 500 000 EUR

Châteaux · Manoirs · Demeures

Autres offres immobilières

Demeure historique Lombardie

Créez une alerte e-mail pour recevoir les nouveaux biens ou inscrivez-vous à Portico Secrets pour accéder à des propriétés en vente confidentielle.

Encore à découvrir